37 万
4309.0元/㎡
首付及税费详请咨询经纪人
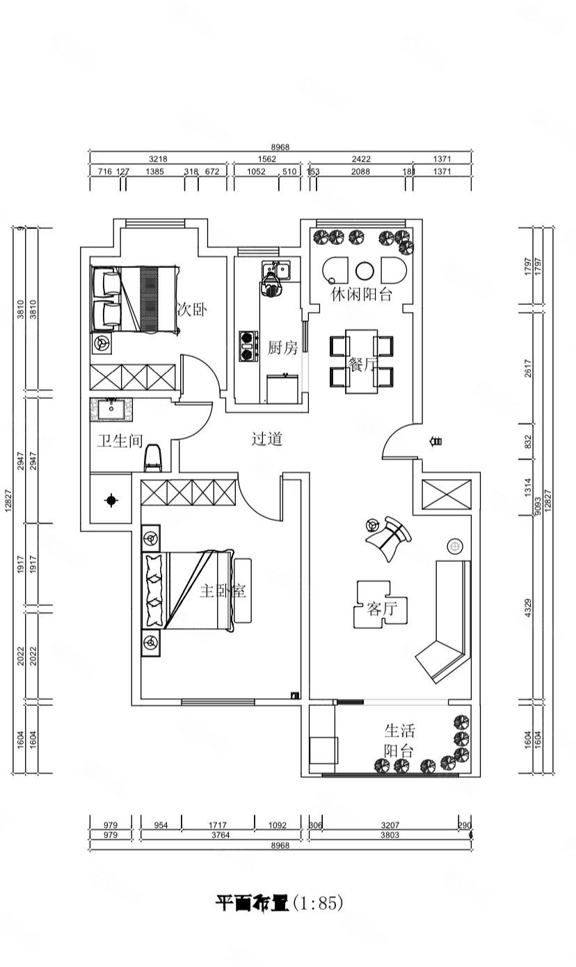
2室2厅1卫
高层(共7层)
85.88㎡
毛坯
南
暂无建造年代/普通住宅
刘*
业主
已通过实名认证

微信扫码拨号










| 交易信息 | 产权性质暂无 | 物业类型普通住宅 |
| 产权年限暂无 | 房本年限满五年 | |
| 参考预算首付11万,月供1163元 | ||
| 发布公司 房东 | ||
| 发布时间2023-03-10 | ||
小区均价
小区户数
暂无
物业费用
1.1 元/平米/月
1.31
绿化率
45.2%
